優質的服務流程
· quality of service processes ·

需求溝通傾聽客戶需求,了解用戶使用環境和現場工況
方案設計根據現場實際工況,針對性出具解決方案
合同簽訂技術和商務規范確認,簽訂合作協議
產品制作選擇最優質的元器件,嚴格按照技術協議
調試安裝現場規范安裝,靜態動態調試,分析儀運行
售后服務后續維護,持續跟進,終身維修

全國熱線
銷售熱線
公司地址山東濟南市槐蔭區太平河南路1567號均和云谷濟南匯智港6號樓
排氣筒高度
排氣筒高度要求在多個標準和規范中有要求,企業環評時環評編制單位肯定已經對照相關標準和規范了,所以排氣筒高度要想合規就是要符合環評報告及環評批復中高度要求,就是說環評報告及批復中要求設置的排氣筒高度為15m,那么建設單位建設排氣筒的時候,也要遵守環評報告及環評批復的要求,排氣筒高度至少為15m。
這里為什么說“排氣筒高度至少為15m”,是因為《大氣污染物綜合排放標準》(GB15297-1996)等多個標準規定:有組織排放源的排氣筒高度不應低于15m。從標準和規范角度分析:排氣筒高度可以高于環評報告及批復要求,不能低于高度要求。若是要求排氣筒高度為15m,環評驗收和環保檢查發現設置了14m的話,肯定要求整改為15m以上,假如企業死活不想整改,那么要想符合環保要求,就可能涉及環評變更或者重新報批環評(在已發布的多個行業重大變動清單中,排氣筒高度排氣筒高度降低10%及以上就屬于重大變動了,需要重新報批環評了),又要進行環評變更影響分析或者重新報批環評,做一個環評變更影響分析或者重新報批環評也是費錢又費時,吃力不討好。最簡單的方法就是企業建設排氣筒的時候遵守環評報告及環評批復中高度要求。
排氣筒采樣孔、采樣平臺
排氣筒(煙囪)應設置便于采樣、監測的采樣口和采樣監測平臺。有凈化設施的,應在其進出口分別設置采樣口。
采樣孔和采樣平臺根據《固定污染源排氣中顆粒物測定與氣態污染物采樣方法》( (GB/T 16157-1996))、《固定源廢氣監測技術規范》(HJ/T397-2007)和《固定污染源煙氣排放連續監測技術規范(試行)》(HJ/T 75-2007)設置,其中《固定污染源排氣中顆粒物測定與氣態污染物采樣方法》( (GB/T 16157-1996))也是《大氣污染物綜合排放標準》(GB15297-1996)的引用標準。
《固定污染源排氣中顆粒物測定與氣態污染物采樣方法》( (GB/T 16157-1996))、《固定源廢氣監測技術規范》(HJ/T397-2007)和《固定污染源煙氣排放連續監測技術規范(試行)》(HJ/T 75-2007)中對采樣孔和采樣平臺的要求是:
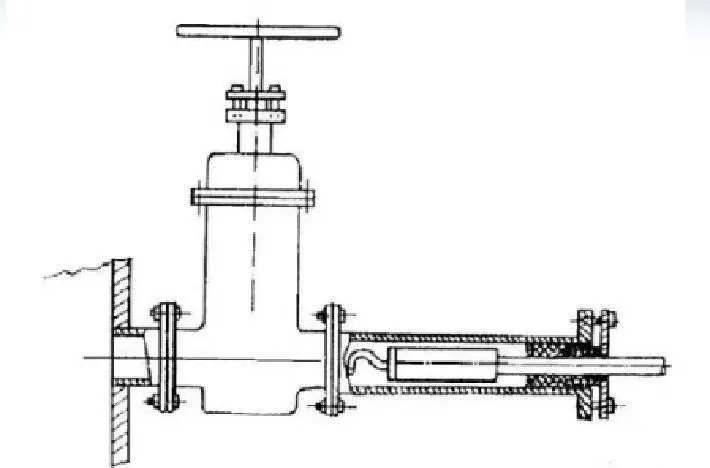
①在選定的測定位置上開設采樣孔,采樣孔的內徑應不小于80mm,采樣孔管長應不大于50mm。不使用時應用蓋板、管堵或管帽封閉(如下圖所示)。當采樣孔僅用于采集氣態污染物時,其內徑應不小于40mm。

②對正壓下輸送高溫或有毒氣體的煙道,應使用帶閘板閥的密封采樣孔(如下圖所示)

③對圓形煙道,采樣孔應設在包括各測點在內的相互垂直的直徑線上(如下圖所示)。對矩形或方形煙道,采樣孔應設在包括各測點在內的延長線上(如下圖所示)。

采用平臺為檢測人員采樣設置,應有足夠的工作面積使檢測人員安全、方便地操作。平臺面積應不小于1.5m²,并設有1.1m高的護欄,采樣孔距平臺面約為1.2~1.3m。
采樣平臺應設置永久性工作電源,平臺上方應設置防雨棚。采樣平臺應避開對人員有危害的場所,應易于人員到達,應建設監測安全通道。當采樣平臺設置高于地面時,應有通往平臺的Z字梯/旋梯/升降梯,切勿設置豬籠梯等不安全通道。
廢氣排氣筒標志牌
廢氣排氣筒應按照國家環保總局制定的《印發排放口標志牌技術規格的通知》(環辦[2003]95號)相關規定,設置與排污口相應的環境保護圖形標志牌。環境保護圖形標志牌設置的距離污染物排放口(源)較近且醒目處,并能長久保留。要求設置高度為環境保護圖形標志牌上緣距離地面2米。
《印發排放口標志牌技術規格的通知》(環辦[2003]95號)規定:
必須符合原國家環境保護局和國家技術監督局發布的中華人民共和國國家標準GB15562.1-1995《環境保護圖形標志》排放口(源)和GB15562.2-1995《環境保護圖形標志》固體廢物貯存(處置)場的要求。
(1)提示標志:底和立柱為綠色,圖案、邊框、支架和文字為白色;
(2)警告標志:底和立柱為黃色,圖案、邊框、支架和文字為黑色。
(1)排放口標志名稱;
(2)單位名稱;
(3)編號;
(4)污染物種類;
(5)××環境保護局監制。
黑體字。
(1)平面固定式標志牌外形尺寸
①提示標志:480×300mm
②警告標志:邊長420mm
(2)立式固定式標志牌外形尺寸
①提示標志:420×420mm
②警告標志:邊長560mm
③高度:標志牌最上端距地面2m地下0.3m
二、標志牌材料
1.標志牌采用1.5-2mm冷軋鋼板;
2.立柱采用38×4無縫鋼管;
3.表面采用搪瓷或者反光貼膜。
三、標志牌的表面處理
1.搪瓷處理或貼膜處理;
2.標志牌的端面及立柱要經過防腐處理。
四、標志牌的外觀質量要求
1.標志牌、立柱無明顯變形;
2.標志牌表面無氣泡,膜或搪瓷無脫落;
3.圖案清晰,色澤一致,不得有明顯缺損;
4.標志牌的表面不應有開裂、脫落及其它破損。

備注:排放口編號、污染物按照環評、排污申請許可證填寫
排氣筒應定期檢修
不得有破損、漏風處,不得存在安全隱患。
排氣筒污染物排放
應滿足環評報告及環評批復要求的污染物排放速率和排放濃度要求,并滿足項目總量控制要求。
排氣筒的一般設計規定
1煙囪結構設計應符合《煙囪設計規范》(GB 50051――2002)和《鋼結構設計規范》(GB 50017――2003)的要求。
2.設計煙囪時,應根據使用條件、功能要求、煙囪高度、材料供應及施工條件等因素,確定采用磚煙囪、鋼筋混凝土煙囪或鋼煙囪。
3.下列情況不宜采用磚煙囪:①重要的或高度大于60 m的煙囪;②地震設防裂度為9度地區的煙囪;③地震設防裂度為8度時,Ill、IV類場地的煙囪。
4.煙囪基礎一般宜采用板式基礎。板式基礎可以是環形或圓形的。在條件允許時,可采用殼式基礎。
5.煙囪筒壁和基礎的受熱溫度應符合下列規定:
①燒結普通黏土磚筒壁的最高受熱溫度不應超過400℃;
②鋼筋混凝土筒壁和基礎以及素混凝土基礎,受熱溫度不應超過150℃;
③鋼煙囪筒壁的最高受熱溫度應符合相關規定。
6.煙囪的荷載與作用可分為下列三類:
①永久性荷載與作用:結構自重、土重、土壓力、拉線的拉力;
②可變荷載與作用
③偶然荷載:罕遇地震作用、拉線斷線、撞擊、爆炸等。
山東新澤儀器有限公司主要致力于環境監測儀器及工業過程氣體分析系統的研發、生產、銷售和代理,新澤人一直在努力的做到,選擇我們就是選擇了優質產品和優質服務,我們做到的不僅僅是你們能看到的,希望我們提供的氣體檢測儀、煙氣在線監測系統、氨逃逸分析儀、磨煤機CO分析系統等都能給您帶來不一樣的使用感受。歡迎來電咨詢探討交流。lm


需求溝通傾聽客戶需求,了解用戶使用環境和現場工況
方案設計根據現場實際工況,針對性出具解決方案
合同簽訂技術和商務規范確認,簽訂合作協議
產品制作選擇最優質的元器件,嚴格按照技術協議
調試安裝現場規范安裝,靜態動態調試,分析儀運行
售后服務后續維護,持續跟進,終身維修